11410 Boul. St-Claude
Québec (La Haute-Saint-Charles)
Québec (La Haute-Saint-Charles)
370 000$
Maison à un étage et demi à vendre
Bienvenue au 11410 boul. St-Claude. Cette propriété nichée en surplomb de boul. St-Claude, vous apporte une vue intéressante. Le terrain de plus de 20 000 pi² vous permettra d'y développer vos projets. Que ce soit à partir de la maison ou encore de monter un 4 logements, cet emplacement est idéal. Visite possible de vendredi à dimanche, 7-8-9 novembre 2025.
1+1
3
169.2m2
1903.2m2
Présenté par
Yanick Girard
Courtier immobilier
Rémy Gagnon
Courtier immobilier
Judith Lussier
Courtier immobilier
Kathy Rouillard
Courtier immobilier
Bâtiment
Armoires
Bois
Mode de chauffage
Air soufflé
Approvisionnement en eau
Municipalité
Fenêtres
PVC
Fondation
Béton coulé, Pilotis
Foyers-poêles
Poêle à bois
Sous-sol
Bas (moins de 6 pieds), entrée de cave, Non aménagé
Système d'égouts
Municipal
Type de fenêtre
Coulissante, Manivelle
Construit en
1950
Terrain
Allée
Non pavée
Aménagement du terrain
Paysager
Revêtements
Vinyle
Stationnement
Extérieur(10)
Toiture
Bardeaux d'asphalte, Membrane élastomère
Topographie
En pente, Plat
Autres caratéristiques
Particularités
Coin de rue
Zonage
Résidentiel
Évaluation
Évalué en 2025
Finance
Évaluation
Bâtiment
132 000$
Terrain
187 000$
Total
319 000$
Dépenses
Taxes municipales
2 973$
Taxes scolaires
221$
Total
3 194$
Inclusions
Stores, luminaires, poêle à bois. Le vendeur peut laisser certain bien dans la maison.Exclusions
Effets personnels du vendeur, lustre de la salle à manger.11410 Boul. St-Claude , Québec (La Haute-Saint-Charles)
21086394
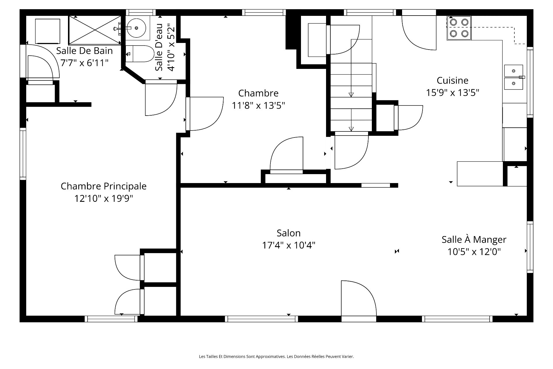
Pièces
Pièce
Étage
Plancher
Informations
Cuisine(13.8x16.5 pi.)
1er niveau/RDC
Céramique
Salle à manger(10.6x11.6 pi.)
1er niveau/RDC
Plancher flottant
Salon(15x10.6 pi.)
1er niveau/RDC
Plancher flottant
Bureau à domicile(11.5x13 pi.)
1er niveau/RDC
Linoléum
Chambre à coucher principale(17.1x11.9 pi.)
1er niveau/RDC
Tapis
Hall d'entrée(8.7x7.6 pi.)
1er niveau/RDC
Plancher flottant
Chambre à coucher(20.4x11.6 pi.)
2ième étage
Bois
Chambre à coucher(13.2x11.9 pi.)
2ième étage
Plancher flottant
Bureau à domicile(7.3x11.6 pi.)
2ième étage
Bois
Salle de bains(7.1x13.1 pi.)
2ième étage
Linoléum
Cave/ chambre froide(30x28 pi.)
Sous-sol
Béton
Salle d'eau(5x5 pi.)
Rez-de-jardin
Plancher flottant
11410 Boul. St-Claude , Québec (La Haute-Saint-Charles)
21086394
Photos















11410 Boul. St-Claude , Québec (La Haute-Saint-Charles)
21086394
Photos















11410 Boul. St-Claude , Québec (La Haute-Saint-Charles)
21086394
Photos










11410 Boul. St-Claude , Québec (La Haute-Saint-Charles)
21086394
